Räumlichkeiten in ihren Funktionen begreifen

Von der ersten Beratung bis zur Realisierung

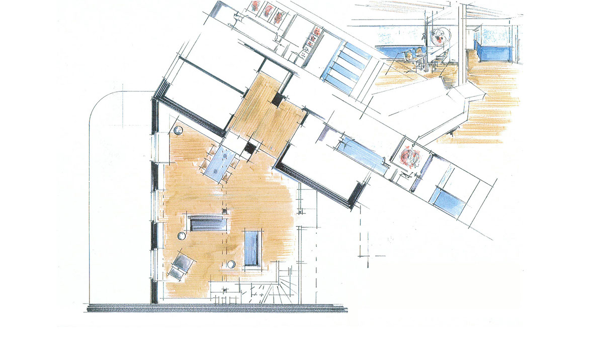
GALERIE

Gute Innenarchitektur ist für die Ewigkeit

Leistungsspektrum

Mit einem  Team von kompetenten Ausführungsfirmen und Tragwerksplanern biete ich Ihnen folgende Leistungen an

 

 

Um-, An- und Ausbauten von Häusern und Dachgeschossen

Um-, An- und Ausbauten von denkmalgeschützten Häusern

Innenausbau von Wohnungen und Dachgeschossen

Umbau und Innenausbau von Büros und Praxen

 

Aber auch

Individuelle Möbelentwürfe für einzelne Raumbereiche wie

Küchen

Bäder

Wohn- und Schlafbereiche

 

und

 

Beratung bei Einrichtungsproblemen

 

Die Betreuung ist auf Ihren Bedarf zugeschnitten und umfasst bei Um-, An- und Ausbauten  folgende Leistungsphasen nach HOAI

 

Grundlagenermittlung, Bedarfsanalyse

 

Vorplanung, Konzeptentwicklung

 

Entwurfsplanung

 

Genehmigungsplanung für das Bauamt

 

Ausführungsplanung und Detaillierung

 

Ausschreibung der Gewerke

 

Mitwirkung bei der Vergabe

 

Bauleitung

Innenarchitektur schafft Räume so individuell

wie die eigene Handschrift

Über mich und meine Arbeit

Innenarchitektur bedeutet für mich, Räumlichkeiten in ihren Funktionen zu begreifen und kompetente, individuelle, kreative Lösungen zu erarbeiten.

 

Dabei steht der Kunde mit seinen Wünschen und Vorstellungen immer im Vordergrund.

 

Meinen Beruf bringe ich weniger mit Luxus in Verbindung als mit Klarheit, Übersicht und Ordnung. Ich schätze ehrliche Materialien, die halten, was sie versprechen

 

Von der ersten Beratung bis zur Realisierung werden Sie fachkundig betreut und unterstützt mit einem Team von kompetenten Ausführungsfirmen und Tragwerksplanern.

 

Auch für kleinere Maßnahmen stehe ich ihnen gerne zur Verfügung und nehme mir  Zeit für sie.

 

Vollkommenheit entsteht offensichtlich nicht dann,

wenn man nichts hinzuzufügen hat, sondern wenn

man nichts mehr wegnehmen kann.

 

Antoine de Saint-Exupéry

 

PRESSE

Bücher

In Neue Dachausbauten sind zwei meiner Projekte dokumentiert, in Einbaumöbel das Rollbett im Sideboard

und das Treppenmöbel.

 

 

Innovative Innenarchitektur in Wort und Bild von Johannes Kottjé in der Deutschen Verlags Anstalt

 

Althaus

modernisieren  8/9 2000

 

Dachausbau

Althaus modernisieren Spezial 2001

Wohnen und Arbeiten im Dachgeschoss

 

CUBE 04/16

Ferienappartement in Bayern

 

house and more 4/2008

Treppenmöbel

 

zuhause Wohnen 11/2008

Gästebett

 

 

Referenzliste

Submitting Form...

The server encountered an error.

Form received.

Dipl.-Ing. Iris Preller

Innenarchitektin AKNW

Vinckestr. 23

40470 Düsseldorf

ADRESSE

TELEFON+FAX / EMAIL

Tel./Fax 0211/6395110

Mobil: +49 1511 4963229 

info@iris-preller.de

KONTAKT

Mit dem Absenden dieses Formulars erklären Sie sich damit einverstanden, dass wir Ihre Angaben für die Beantwortung Ihrer Anfrage bzw. Kontaktaufnahme verwenden. Eine Weitergabe an Dritte findet nicht statt sofern dies nicht auf Grund geltender Datenschutzvorschriften gerechtfertigt ist oder wir dazu gesetzlich verpflichtet sind. Wir weisen darauf hin, dass die Datenübertragung im Internet (z.B. bei der Kommunikation per e-Mail) Sicherheitslücken aufweisen kann. Ein lückenloser Schutz der Daten vor dem Zugriff durch Dritte ist nicht möglich.Sie können diese erteilte Einwilligung jederzeit mit Wirkung für die Zukunft widerrufen. Im Falle des Widerrufs werden Ihre personenbezogenen Daten umgehend gelöscht. Sonst werden Ihre Daten gelöscht, wenn wir Ihre Anfrage bearbeitet haben oder der Zweck der Speicherung entfällt. Sie können sich jederzeit über die zu Ihrer Person gespeicherten Daten informieren. Weitere Informationen zum Datenschutz finden Sie in der Datenschutzerklärung dieser Webseite.

 

 

WILLKOMMEN

<